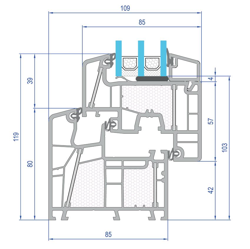
PVC okno AJM 8000 ENERGETO®
Tehnološko dovršeno PVC okno za zelo zahtevne objekte, kjer načrtujete uporabo najkakovostnejših materialov za dosego maksimalnega energetskega učinka.
PVC okno AJM 8000 energeto® ima veliko vrhunskih lastnosti: 85-milimetrski profil, ojačan z steklenimi vlakni in s posebno izolacijsko poliuretansko peno. Z temi lastnostmi to PVC okno najprimernejše za pasivno in nizko-energijsko gradnjo.
Konstrukcija profila omogoča vgradnjo osnovnega (varnostna stopnja I), do najzahtevnejšega varnostnega okovja (stopnja IV po DIN standardu). Lepljeno steklo v krilo omogoča še dodatno varnost. Upravljanje z oknom je lahko in zanesljivo.
Ozki profili na krilu AJM 8000 energeto® omogočajo zelo veliko svetlobe. Dizajn profila je moderno oglat, in je tako atraktiven, sodobega videza.
PVC okno AJM 8000 energeto®, je UV odporen, ekstrudirano tesnilo je trajnoelastično okovje pa je odporno na korozijo.
Opcije izdelave: okna, drsna okna, balkonska vrata, drsna vrata, panoramska stena, harmonika vrata
Prednosti in odlike okna AJM 8000 energeto®:
- skupna toplotna prehodnost okna: Uw = do 0,60 W/m²K,
- skupna debelina stekla: do 51 mm,
- zvočna izolacija stekla: Rw= do 51 dB,
- tri trajnoelastična tesnila,
- tip profila: ravni robovi,
- podboj in krilo brez jeklene ojačitve,
- krilo okna je zlepljeno s steklom,
- debelina podboja: 85 mm,
- debelina okna: 109 mm.
Galerija slik:




PVC okno AJM 8000 ekskluziv
Je PVC okno, ki ga odraža masivnejša in zaobljena oblika.Ima jekleno ojačitvijo v podboju in krilu ter je izdelano za graditelje nizkoenergijskih objektov.
PVC okno AJM 8000 ekskluziv je izdelano za energetsko varčnejše objekte, in ima trojno zaščito: toplotno, zvočno in protivlomno!
To izjemno PVC okno Ima poleg trojne zaščite, širok, elegantno oblikovan profil , zaokroženih linij. Tri brezkončna tesnila in velik naslon podboja na krilo. Poleg tega je to PVC okno visok zvočni in toplotni izolator.
AJM 8000 ekskluziv priporočamo graditeljem, ki želite okno z večjim prihrankom energije v srednjem cenovnem razredu.
Opcije izdelave: okna, drsna okna, balkonska vrata, drsna vrata, panoramska stena, harmonika vrata
Prednosti profila AJM 8000 - ekskluziv:
- skupna toplotna prehodnost okna: Uw = do 0,67 W/m²K,
- skupna debelina stekla: do 51 mm,
- zvočna izolacija stekla: Rw = do 51 dB,
- tri trajnoelastična tesnila,
- tip profila: zaokroženi robovi,
- krilo okna je zlepljeno s steklom,
- debelina podboja: 85 mm, debelina stekla 109 mm
Galerija slik:




PVC okno AJM 5000
PVC okno AJM 5000 ima sodobni videz. Ima zaobljeno, soft line obliko . Izdelan je iz petkomornih profilov nemškega podjetja Aluplast. Okno je odlična rešitev obnovo stanovanj in standardno izolirane objekte. Z kakovostnejšo izbiro stekla lahko povsem zadovoljite potrebe energetsko zahtevnih objektov
Opcije izdelave: okna, drsna okna, balkonska vrata, drsna vrata, panoramska stena, harmonika vrata
Prednosti in odlike profila AJM 5000:
- skupna toplotna prehodnost okna: Uw = do 0,86 W/m²K,
- skupna debelina stekla: do 41 mm,
- zvočna izolacija stekla: Rw = do 49 dB,
- tri trajnoelastična tesnila,
- tip profila: zaokroženi robovi,
- podboj in krilo z jekl.ojačitvijo,
- deb. podboja: 70 mm, deb. okna: 89 mm
Galerija slik:



















